Testo tradotto
Testo originale
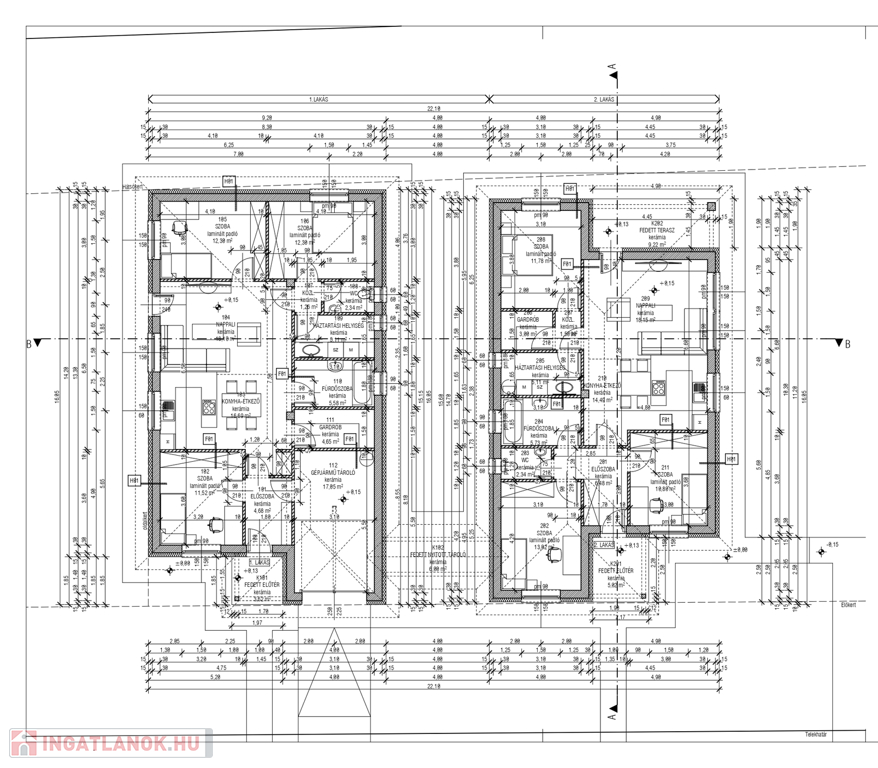
Nyíregyháza–Nyírszőlős központjában eladó egy új építésű, 93 m²-es családi ház.Az ingatlan nappali + 3 szobás kialakítású, teraszkapcsolatos nappalival, külön gardróbhelyiséggel, önálló fürdőszobával és 2 WC-vel.
A burkolatok (járólap, laminált parketta), a beltéri ajtók és a szaniterek szabadon választhatók, így az otthon saját ízlés szerint alakítható.A fűtést egyedi gáz kondenzációs kazán biztosítja padlófűtéssel, kiegészítve 2 db inverteres hűtő-fűtő klímával.
Az épület 3 rétegű üvegezésű műanyag nyílászárókkal, utcafronton épített kerítéssel, valamint kiváló hőszigeteléssel készül:– 15 cm homlokzati szigetelés– 30 cm födémszigetelés– 10 cm aljzatszigetelés
Energetikai besorolás: tulajdonos tájékoztatása szerint folyamatban van, illetve komoly érdeklődés esetén rövid időn belül elkészíttetésre kerül.
A ház 2026 év végén kerül átadásra, ideális választás modern, energiatakarékos otthont keresők számára.Az ingatlan azonosítója: 99706Érdeklődni: +36304092510 Az ingatlan azonosítója: 99706 Érdeklődni: +36304092510
93 metri quadrati
500 metri quadrati
In costruzione
Casa unifamiliare
Mattone
Pompa di ricircolo (sistema di riscaldamento chiuso a pressione)
Non é stato fornito
Non fornito!
di 1-5 anni
Non é stato fornito
Non é stato fornito
Non é stato fornito
Cerchi nella nostra banca dati una semplice casa, appartamento, ufficio, garage, lotto o qualsiasi altro immobile!
Il dominio Immobiliare.hu é membro del Real Estate Group.
Immobili in vendita in Ungheria - Immobiliare.hu © 2026 Tutti i diritti riservati