Casa vendesi, Nyírpazony

Pagina principale » Casa vendesi, Nyírpazony » Casa vendesi, Nyírpazony

75 950 000 Ft

€213 841
Dati dell'inserzionista

Szabolcsi Zoltán

Scrivi messaggio
Il messaggio deve contenere almento 10 caratteri.
Descrizione

Testo tradotto

Testo originale
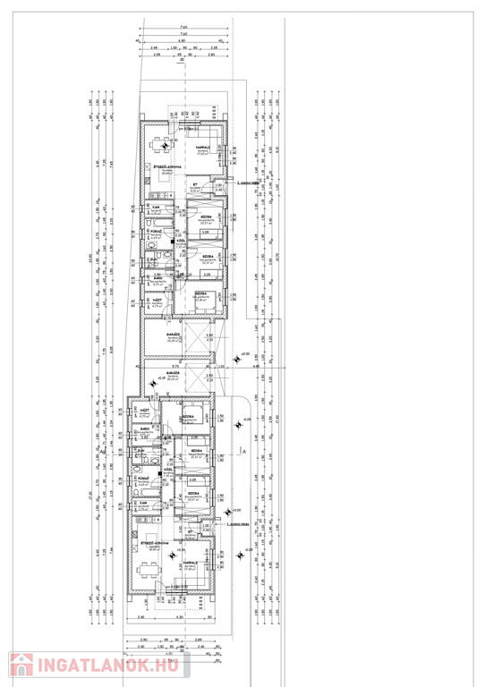
Nyírpazonyban ÚJ ÉPÍTÉSŰ 122 nm-es, 3 szoba + nappali konyha étkezővel teraszkapcsolattal, 2 fürdő és 2 wc-vel, háztartási helységgel és gardróbszobával, választható járólap és laminált parketta burkolattal, egyedi gáz Ariston kondenzációs gázkazánnal padló fűtéssel, 2 db inverteres klímával, 3 réteg üvegezésű Kömmerling 7 légkamrás műanyag nyílászárókkal, 30 Porotherm ragasztóhabos tégla építéssel, 10 cm-es grafitos homlokzati, 30cm födém szigeteléssel ellátott garázsok mentén összeépített ikerház, 450 nm-es telken, 20 nm-es garázzsal eladó. Kulcsrakész átadás 2026 év vége.Az ingatlan azonosítója: 98301Érdeklődni: +36702560693 Az ingatlan azonosítója: 98301 Érdeklődni: +36702560693

Dati di Casa

122 metri quadrati

450 metri quadrati

In costruzione

Casa unifamiliare

Mattone

Pompa di ricircolo (sistema di riscaldamento chiuso a pressione)

Non é stato fornito

Non fornito!

di 1-5 anni

Non é stato fornito

Non é stato fornito

Non é stato fornito

Fotografie