Testo tradotto
Testo originale
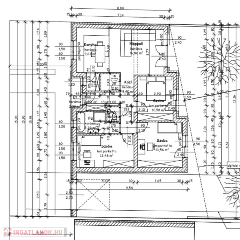
Eladó egy modern, új építésű, Önálló családi ház Nyírtelek nyugodt, zöldövezeti részén.
A ház 83 nm, modern elrendezésű
- 3 külön nyíló szoba, kettő teraszkapcsolatos
- Tágas, világos nappali, amerikai konyha, teraszkapcsolattal
- Kamra
- Fürdőszoba, wc külön helyiségben
- Háztartási helyiség
- Közlekedő elrendezésű.
A ház minőségi alapanyagokból, korszerű hőszigeteléssel, energiatakarékos megoldásokkal és gépészeti megoldásokkal épült.
Tégla falazat (Porotherm 30), 15 cm külső szigetelés, belső falak gépi vakolással, hőszivattyús padlófűtés, Kömmerling 3 rétegű műanyag nyílászáró elektromos redőny vezeték előkészítéssel, 5 kw klíma, cserép tetőfedés, 25 cm födémszigetelés, fedett autóbeálló elektromos garázskapuval szerelve.
Az ingatlan kulcsrakész állapotban várja új tulajdonosát, akinek lehetősége van még a belső terek személyre szabására is, így ízlése szerint Választhat szanitereket, burkolatokat, beltéri ajtókat.
Telek mérete: 360 nm, körbekerített, utcafronti kerítéssel, autóbejáró elektromos garázskapuval szerelve.
Energetikai besorolás: AA+
Amennyiben felkeltette érdeklődését várom hívását!
Vásárlóinknak a szolgáltatás díjtalan!
Az ingatlan azonosítója: 68683Érdeklődni: +36305778872 Az ingatlan azonosítója: 68683 Érdeklődni: +36305778872
83 metri quadrati
0 metri quadrati
In costruzione
Casa unifamiliare
Mattone
Geotermico
Non é stato fornito
Non fornito!
di 1-5 anni
Non é stato fornito
Non é stato fornito
Non é stato fornito
Cerchi nella nostra banca dati una semplice casa, appartamento, ufficio, garage, lotto o qualsiasi altro immobile!
Il dominio Immobiliare.hu é membro del Real Estate Group.
Immobili in vendita in Ungheria - Immobiliare.hu © 2026 Tutti i diritti riservati