Testo tradotto
Testo originale
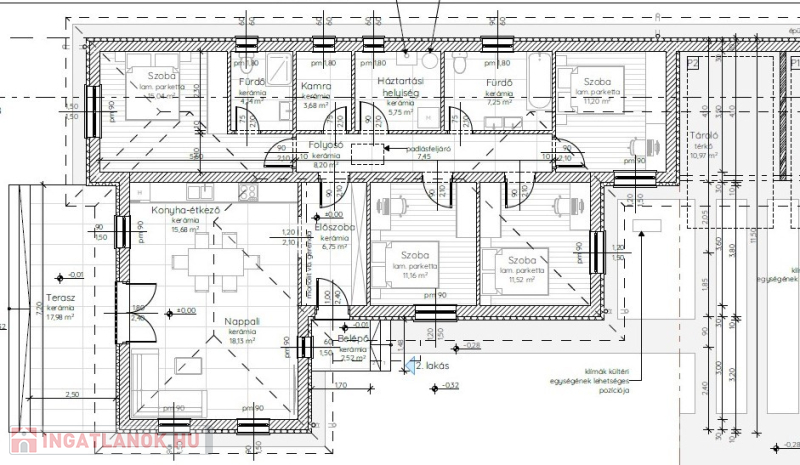
Ócsa szép, rendezett kertvárosi részén egyszintes, déli tájolású, 130 m2-es, nappali + 4 szobás, fedett gépkocsibeállókkal elválasztott ikerházi lakások, 2 fürdőszobával, nagy teraszokkal, 1079 m2-es, összközműves telken, magas műszaki tartalommal 2026 II. negyedévi átadással kulcsrakészen eladók. Az ingatlanokat csak irodánk kínálatában találja.
Az udvar felőli, szintén 130 m2-es, nappali + 4 szobás lakás 693 m2-es telekrésszel már elkelt.
9 KW-os Daikin levegő-víz hőszivattyú + meleg víz tartály biztosítja a padlófűtést és a meleg víz ellátást. A szobánkénti hűtést szintén Daikin invertes hűtő-fűtő klímák biztosítják. Rejtett redőnytokos homlokzati kialakítás a nyílászárók felett. Épített utcafronti kerítés, színterezett lemez határoló kerítések a telekhatárok mentén, elektromos kapuk, kaputelefon, riasztó. A belső kialakítás, festés, burkolás, szaniterek, belső ajtók még választhatók. Számos referencia munka megtekinthető.
Bankfüggetlen, díjmentes hiteltanácsadással is segítjük vásárlását Magyarország piacvezető hitelközvetítője által. Egyedi kamatkedvezmények. Hívjon bizalommal!
130 metri quadrati
386 metri quadrati
Ottimo/a
Casa unifamiliare
Non é stato fornito
Non é stato fornito
Non é stato fornito
Non fornito!
Non fornito!
Non é stato fornito
Non é stato fornito
Non é stato fornito
Cerchi nella nostra banca dati una semplice casa, appartamento, ufficio, garage, lotto o qualsiasi altro immobile!
Il dominio Immobiliare.hu é membro del Real Estate Group.
Immobili in vendita in Ungheria - Immobiliare.hu © 2026 Tutti i diritti riservati