Casa vendesi, Pécs

Pagina principale » Casa vendesi, Pécs » Casa vendesi, Pécs

129 900 000 Ft

€332 744
Dati dell'inserzionista

Szecsődi Gábor

Scrivi messaggio
Il messaggio deve contenere almento 10 caratteri.
Descrizione

Testo tradotto

Testo originale
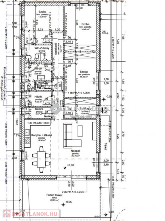
Pécs D-i részén a Postamester utcában eladó új építésű KÉSZ minimal stílusú családi ház.Az ingatlan lakótere 116nm-es, mely magába foglal egy tágas konyha-étkező-nappalit, 3hálószobát melyből az egyik saját fürdőszobával rendelkezik, továbbá egy külön fürdőt, mosdót és gépészeti helyiséget.A nappaliból nyílik a közel 30nm-es fedett terasz.Energetikája A+ - os. Fűtését turbógázkazán látja el, a tetőn napelem.A hűtésről és másodlagos fűtésről klímák gondoskodnak (4db.)A ház tájolása D-K-i, napos.Az ingatlan október végével-november elejével költözhető!

Referencia szám: HZ042027

Dati di Casa

116 metri quadrati

786 metri quadrati

Medio/a

Casa unifamiliare

Mattone

Unico/a

Gas

Tutti i comfort

Di nuova corstuzione

Non é stato fornito

Pianterreno

Non é stato fornito

Mappa