Testo tradotto
                                                    
                            Testo originale
                            Eladó felújított családi ház Zalában, Tabtól 2-3 km-re, a Balatontól mindössze 25 km-re.
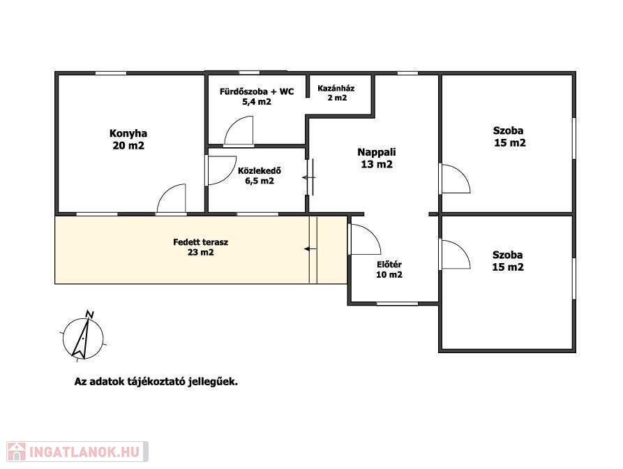
Csendes zsákfalu, nyugalom és vidéki élet várja új tulajdonosát ebben a felújított házban. A két nagy szoba hajópadlóval és gerendás mennyezettel készült, a többi helyiség kerámialappal burkolt, miközben a gerendás mennyezet végig kíséri az egész házat, hangulatos és karakteres tereket teremtve.
A fűtés cserépkályhás központi rendszerrel működik, amely radiátorokon keresztül biztosítja a meleget az egész házban, a konyhában pedig plusz kandalló fokozza a hangulatot. A ház vegyes falazatú, az eredeti részen megőrizték a vályogfalat, a hozzáépített rész téglaépítésű. A tetőszerkezet új, a régi cserepek visszakerültek, a padlás pedig minőségi szigetelést kapott.
Az ingatlan víz- és villanyhálózata teljes körűen felújított, villanybojlerrel felszerelt, a gázcsonk a telken belül található. A házhoz nagy, fedett terasz tartozik. 
A tágas, 5498 m2-es telek egy része jelenleg állattartásra használhat, másik része szántóként művelt terület.
A beépített konyhabútor, a cserépkályha és a kandalló az ár részét képezi, így a ház beköltözésre készen áll. 
A tulajdonviszonyok rendezettek, az ingatlan  per-és tehermentes.
Megfelel az Otthon Start Program feltételeinek.
Referencia szám: M314260                        
87 metri quadrati
5 498 metri quadrati
Buono/a
Casa unifamiliare
Misto/a
Riscaldamento centralizzato della casa
Non é stato fornito
Tutti i comfort
di oltre di 50 anni
Non é stato fornito
Pianterreno
Non é stato fornito
 
                Cerchi nella nostra banca dati una semplice casa, appartamento, ufficio, garage, lotto o qualsiasi altro immobile!
Il dominio Immobiliare.hu é membro del Real Estate Group.
Immobili in vendita in Ungheria - Immobiliare.hu © 2025 Tutti i diritti riservati