Casa vendesi, Röszke

Pagina principale » Casa vendesi, Röszke » Casa vendesi, Röszke

71 990 000 Ft

€186 551
Dati dell'inserzionista

Kókai Ferenc

Scrivi messaggio
Il messaggio deve contenere almento 10 caratteri.
Descrizione

Testo tradotto

Testo originale
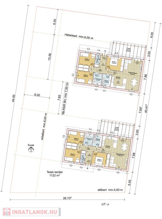
Röszkén Eladó egy most induló, tégla építésű, 99 nm-es élettérrel rendelkező, nappali plusz három - négy szobás családi ház, amelyhez igény szerint terasz, vagy medence is járhat (ez külön megállapodás lehet az eladóval), mindenezek mellett egy 500 nm - es telek is jár hozzá.
A feltűntetett ár kulcsrakész ár, csak a konyhabútor, valamint a mennyezeti armatúrák, valamint a burkolatok és festés költségét nem tartalmazzák.
Az ingatlanra CSOK plusz, otthon start, és más hiteltámogatás is igénybe vehető.
A ház 1 db nappalival, 3-4 db hálószobával, 1 db fürdőszobával, konyha étkezővel közlekedővel, terasszal rendelkezik. Az ingatlan elhelyezkedésre, kialakítása miatt, maximálisan kiemeli ezt az ingatlant az átlagos lakások sorából és egyedülálló választássá teszi azt. További előny. hogy ház hőszivattyús padló fűtéssel, klímás hűtéssel lesz felszerelve.
Fontos tény, hogy teljesen hétköznapi használat mellett is a rezsicsökkentés értékhatárai alatti a fogyasztás, így a rezsiköltség rendkívül alacsony.
A lakás délnyugati fekvésű, napfényes ingatlan.
A környék infrastruktúrája tökéletes, tömegközlekedés, 1 - 3 percnyire az ingatlantól.

Helyiségei:
- amerikai konyha, nappali
- 3-4 szoba
- dupla fürdő
- wc
- közlekedő, előtér
- terasz

A teljes (totál) műszaki tartalom rendelkezésre áll, valamint a helyszín megtekintése is rugalmas.

Várom megtisztelő hívását:
KÓKAI FERENC Ving
+36 70 422 9777
Prémium ingatlanértékesítő
Szeged
(További képekért és információkért kérem hívjon!)

Dati di Casa

99 metri quadrati

520 metri quadrati

Ottimo/a

Casa unifamiliare

Mattone

Non é stato fornito

Non é stato fornito

Non fornito!

Non fornito!

Non é stato fornito

Non é stato fornito

Non é stato fornito

Fotografie