Casa vendesi, Salgótarján

Pagina principale » Casa vendesi, Salgótarján » Casa vendesi, Salgótarján

38 000 000 Ft

€97 259
Dati dell'inserzionista

Tatár Tamás

Scrivi messaggio
Il messaggio deve contenere almento 10 caratteri.
Descrizione

Testo tradotto

Testo originale
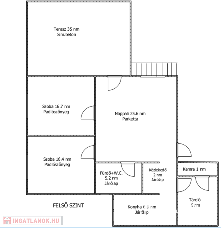
Salgótarjánban (Forgách telep), kiváló adottságokkal rendelkező, 148 nm hasznos alapterületű, 6 szobás, 2 szintes, tehermentes családi ház eladó!

Az ingatlan egy cca. 900 nm-es, lankás telken helyezkedik el, csendes, családbarát környezetben. A telken melléképületek, több autó számára felszíni beálló található.

A családi ház két önálló lakrészre osztott, ezáltal, akár több generáció harmonikus együttélésére vagy otthoni vállalkozás működtetésére is ideális lehet.

A földszinten a nappali, 2 hálószoba, fürdőszoba, konyha, közlekedő, tároló és műhely/kazánház került kialakításra.

Az emeleti szinten nappali, 2 kényelmes hálószoba, fürdőszoba, konyha, közlekedő és tároló kapott helyet.

Az emeleten nappali kapcsolatos, 35 nm-es, részben fedett terasz található.

A ház műszakilag jó állapotú, szerkezete stabil és masszív. Téglából épült, 8 cm külső hőszigeteléssel ellátott. A nyílászárók korszerű, hő- és hangszigetelt műanyag ablakok. A fűtést gáz kombi cirkó kazán, a meleg víz ellátást villanybojler biztosítja, de alternatív megoldásként vegyes tüzelésű kazán és kandalló is rendelkezésre áll, így a fűtési rendszer rugalmasan használható.

A ház 70'-es években épült, jó állapotú, azonban, igény szerint esztétikai felújítás szükséges lehet.

Ez az otthon ideális választás lehet nagycsaládosok számára, többgenerációs együttéléshez, vagy olyanoknak, akik külön bejáratú lakrészt keresnek otthoni vállalkozáshoz.

A ház tágas, jól kihasználható, a környék csendes, mégis jól ellátott – mindössze 5 perc távolságra Salgótarján központjától.

A ház per-és tehermentes, a további részletekért kérem hívjon.
(További képekért és információkért kérem hívjon!)

Dati di Casa

148 metri quadrati

900 metri quadrati

Da rinnovare

Casa unifamiliare

Mattone

Pompa di ricircolo (sistema di riscaldamento chiuso a pressione)

Non é stato fornito

Non fornito!

Non fornito!

Non é stato fornito

Non é stato fornito

Non é stato fornito