Casa vendesi, Siófok

Pagina principale » Casa vendesi, Siófok » Casa vendesi, Siófok

81 500 000 Ft

€209 318
Dati dell'inserzionista

Katona Tamás

Scrivi messaggio
Il messaggio deve contenere almento 10 caratteri.
Descrizione

Testo tradotto

Testo originale
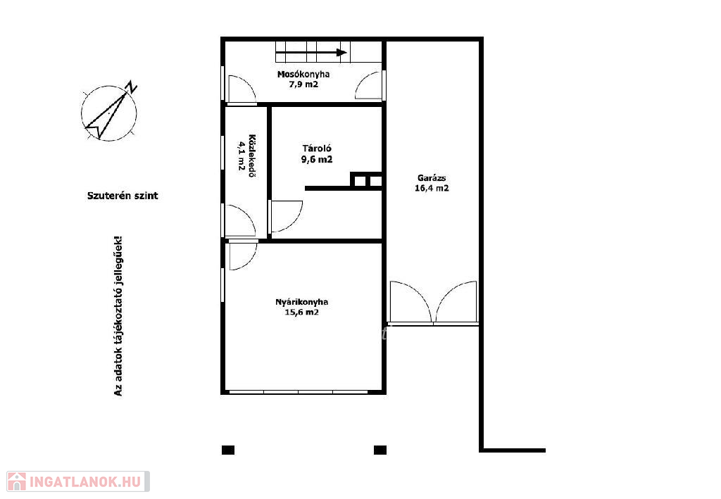
Balaton déli part Siófok 160 m2 családi ház eladó. Az ingatlan Kiliti városrészben családi házas övezetben helyezkedik el. A két szintes lakóépület alsó szintjén garázs, nyári konyha, mosókonyha és tároló kapott helyet, alkalmas lehet külön lakrészként való hasznosításra. A két szint belső lépcsővel összekötött. A 108 m2-es lakószinten a lakóelőtérből 3 szoba és egy félszoba nyílik. A kedvező tájolású nappalihoz teraszkapcsolat biztosított. A tetőtér jelenleg padlásként funkcionál, belső lépcsőről megközelíthető, de külső lépcső építése és tetőtér beépítése esetén nettó 90 m2-es önálló lakásként használható lehet. A lakóépület tetőfedése néhány éve felújításra került. A ház fűtés kombi gázkazánnal, radiátoros hőleadókkal kiépített a lakószinten, a szuterénben gázkonvektor fűt. Az összközműves, bekerített telek terület 800 m2, melyen további gazdasági épület: tároló, műhely található. A lakóépület vásárláshoz OTP hitel, CSOK+ hitel igénybe vehető, ügyintézésben ingyenes szakértői segítséget nyújtunk. Balaton-part 3200 méter, autópálya csatlakozás 1200 méter távolságban van. Otthon Start Hitelprogram Bővebb információért keressen telefonon!

Referencia szám: M304289

Dati di Casa

106 metri quadrati

800 metri quadrati

Medio/a

Casa unifamiliare

Mattone

Pompa di ricircolo (sistema di riscaldamento chiuso a pressione)

Gas

Tutti i comfort

di 21-50 anni

Non é stato fornito

1 piano

Non é stato fornito

Mappa