Casa vendesi, Siófok

Pagina principale » Casa vendesi, Siófok » Casa vendesi, Siófok

399 000 000 Ft

€1 027 980
Dati dell'inserzionista

Katona Tamás

Scrivi messaggio
Il messaggio deve contenere almento 10 caratteri.
Descrizione

Testo tradotto

Testo originale
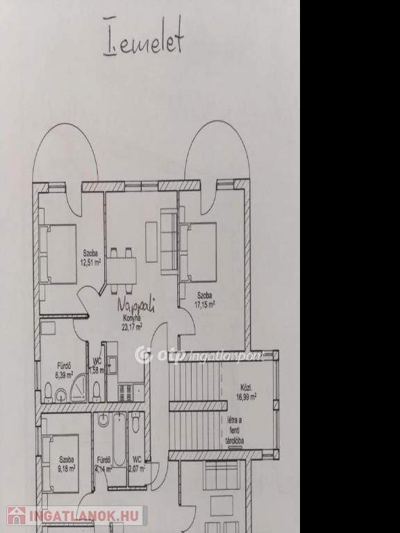
Somogy megye, Siófok, háromszintes családi ház eladó! Három az egyben, így is nevezhetnénk ezt a különleges építészeti megoldások alkalmazásával készült, mintegy 490 négyzetméteres ingatlant. Az épület földszintjén két tágas, praktikus elrendezésű apartman került kialakításra, amelyek akár mind a négy évszakban tudják fogadni a Balatonra érkező vendégeket. Az építész tulajdonos házaspár 2 darab fallabda pályát álmodott és valósított meg a hozzátartozó öltözőkkel, fürdőkkel, mellékhelyiségekkel. A 6 méteres belmagassággal rendelkező játékterek falainak építésekor, rendkívül előrelátóan, a funkció későbbi megváltoztatásával is terveztek. A két pályából kialakítható akár 4 db lakás is, mivel az épület statikailag alkalmas erre a belső átalakításra. Az öltözők előtti közlekedőn keresztül juthatunk az épület legmélyebben fekvő helyiségébe, a tégla boltíves borospincébe. A ház emeleti szintjén létesítettek két lakást, amelyekből az egyiket állandóan lakják ( 3 szobás ), a másik ( 2+2 szobás ) nyári időszakban kiadásra kerül. A tetőtérben két egység került kialakításra, mindkettőben szoba, félszoba, fürdő+WC helyiségek találhatók. Ennek a tekintélyt parancsoló méretű családi ház-nak 3 db gázcirkó kazánnal oldották meg a fűtését, valamint a lakóegységeket, apartmanokat légkondícionálták. A hőszigetelt ablakok cseréje a közelmúltban történt. A Bramac cseréppel borított tetőkön 14 db napelem panel lett elhelyezve, amelyek jelentősen mérséklik a villamosenergia költségeket. A házban található beépített berendezések a vételár részét képezik. A telek 1021 nm, amely a mérete alapján, a helyi építési szabályzatnak megfelelően, egy további lakóingatlan megépítésére lehetőséget biztosít, illetve egy nagyobb medence is elhelyezhető rajta. Egyedi ajánlat, elsősorban befektetők számára, kizárólag az OTP Ingatlanpont KFT kínálatában!

Referencia szám: M303850

Dati di Casa

490 metri quadrati

1 021 metri quadrati

Buono/a

Casa unifamiliare

Mattone

Pompa di ricircolo (sistema di riscaldamento chiuso a pressione)

Gas

Comfort di lusso

di 21-50 anni

Non é stato fornito

2 piani

Non é stato fornito

Mappa