Casa vendesi, Sormás

Pagina principale » Casa vendesi, Sormás » Casa vendesi, Sormás

34 900 000 Ft

€91 503
Dati dell'inserzionista

Hohl József

Scrivi messaggio
Il messaggio deve contenere almento 10 caratteri.
Descrizione

Testo tradotto

Testo originale
Nagykanizsától mindössze 8 km távolságra, Sormás település csendes utcájában kínálunk Önnek egy kellemes otthont, amely ideális választás lehet mindenki számára, akik szeretnének egy csendes, zöldövezeti környezetben élni, mégis közel maradni a városi kényelemhez. A terület több mint 2200 nm nagyságú, így alkalmas kisebb önellátás kialakítására.

Az ingatlan főbb jellemzői:
- Átlagos állapotú, de folyamatosan karbantartott ház
- 4 kényelmes szoba
- Praktikusan elkülönített fürdőszoba és wc, ami növeli a mindennapi komfortot
- A részben kicserélt nyílászárók és külső 3 cm vastag hőszigetelés gondoskodnak az alacsony fenntartási költségekről
-Új főbejárati ajtó beépítése megtörtént
- Új villamoshálózat régi de a 3 fázis rendelkezésre áll
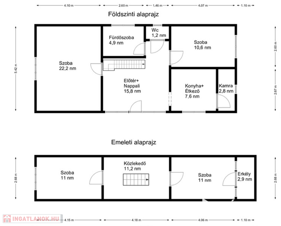
- Az alsó szinten 65 nm, a tetőtérben pedig további 33 nm hasznos alapterületű lakótér áll rendelkezésre
-Fűtése az emeleten konvektorokkal, a földszinten cserépkályhával és kandallóval megoldott.

Nagyobb családok számára is ideális lakhatást biztosíthat. Jöjjön el, és tekintse meg személyesen is! Ne hagyja ki ezt a remek lehetőséget!
Iroda: Nagykanizsa Platán sor 7
(További képekért és információkért kérem hívjon!)

Dati di Casa

98 metri quadrati

2 260 metri quadrati

Medio/a

Casa unifamiliare

Mattone

Con convettore

Non é stato fornito

Non fornito!

Non fornito!

Non é stato fornito

Non é stato fornito

Non é stato fornito