Testo tradotto
Testo originale
A Szolnoki CasaNetWork Ingatlaniroda megvételre kínál Szászberken a Rákóczi úton újépítésű, két lakásos ikerházi lakást!
Szászberek Jász-Nagykun-Szolnok Vármegye dinamikusan fejlődő települése, Szolnok 20 km, Budapest 100 km, az M4 autóút néhány perc menetidővel elérhető. Annak érdekében, hogy fejlett európai településsé emeljék Szászberket az önerő mellett pályázati forrásokat felhasználva fejlesztik az infrastruktúrát.A közbiztonság kiemelkedően jó, a településen magas színvonalú általános iskola, óvoda, bölcsőde várja a kisgyermekes családokat is. 2019 évben átadták a Szászbereki Sportcsarnok épületét, valamint a műfüves futballpályát, így a sportolás szerelmesei helyben hódolhatnak szenvedélyüknek.
A lakások átadási határideje 2024 évben várható.
A hirdetési ár 30 % befizetésével garantált.
Néhány jellemző az ingatlanról:
- a lakóparkban kettő két lakásos modern kivitelezésű ikerház épül
- phorotherm 30 HS falazat, Austrotherm 15 cm hőszigetelés
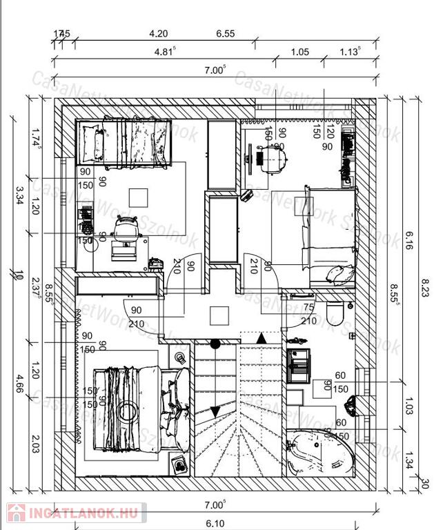
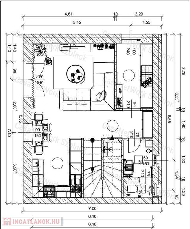
- a lakás 86 m2 alapterülettel, 17 m2 terasszal és 50 m2 autóbeállóval épül, kettő gépkocsi parkolására is alkalmas
- elosztását tekintve előtér, nappali, konyha-étkező, 3 szoba, 2 db fürdőszoba + wc, közlekedő, terasz
- belső kétszintes elrendezéssel
- hőszigetelt műanyag nyílászárók kerülnek beépítésre
- emeletenként egy-egy hűtő-fűtő klíma
- a fűtést kondenzációs kazán fogja biztosítani, a földszinten padlófűtés, az emeleten radiátorok lesznek beépítve
- minden lakás saját, fizikailag elválasztott kertrésszel rendelkezik
- a burkolatokat a tulajdonos választhatja katalógusbólMind a műszaki, technológiai megvalósítás, mind a belső terek kialakítása a mai kor igényeinek, elvárásainak megfelelő.
|A hirdetésben szereplő információk a megbízótól kapott adatok alapján készültek.|
Részletes műszaki leírás az irodánkban elérhető!
Amennyiben a hirdetésben szereplő új építésű társasházi lakás, vagy bármely, a kínálatunkban található ingatlan felkeltette érdeklődését, hívjon bizalommal!Irodánk teljeskörű szolgáltatással áll ügyfelei rendelkezésére: hitelügyintézés, ügyvédi szolgáltatás, ingatlan értékbecslés, energetikai tanúsítvány készítése.CasaNetWork - Ingatlanban otthon vagyunk!
103 metri quadrati
627 metri quadrati
Ottimo/a
Case gemelle
Mattone
Pompa di ricircolo (sistema di riscaldamento chiuso a pressione)
Non é stato fornito
Tutti i comfort
Non fornito!
Non é stato fornito
Non é stato fornito
Non ammobiliato/a
Cerchi nella nostra banca dati una semplice casa, appartamento, ufficio, garage, lotto o qualsiasi altro immobile!
Il dominio Immobiliare.hu é membro del Real Estate Group.
Immobili in vendita in Ungheria - Immobiliare.hu © 2025 Tutti i diritti riservati