Casa vendesi, Százhalombatta

Pagina principale » Casa vendesi, Százhalombatta » Casa vendesi, Százhalombatta

135 000 000 Ft

€351 672
Dati dell'inserzionista

Nádasi Norbert

Scrivi messaggio
Il messaggio deve contenere almento 10 caratteri.
Descrizione

Testo tradotto

Testo originale
Készüljön fel, mert megtalálta álmai otthonát Százhalombatta legkeresettebb részén, az Óváros csendes szegletében! Eladó egy 126 négyzetméteres, páratlan hangulatú családi ház, amely a Duna közvetlen partján kínál exkluzív életminőséget.

Ez az ingatlan nem csupán egy ház – ez egy életstílus. A minőség, a nyugalom és a kreatív enteriőr tökéletes harmóniája várja új tulajdonosát.

A TÉR ÉS A HANGULAT:


Minőség minden részletben: A ház építése során kizárólag minőségi anyagok kerültek felhasználásra.
Izgalmas enteriőr megoldások: A belső terek egyediek és inspirálóak:

Az előszoba falát egyedi kottás tapéta díszíti, amely művészi fogadtatásban részesíti Önt és vendégeit.
A nappali-konyha központjában álló öntöttvas-kályha melegséget és rusztikus eleganciát sugároz, kiegészítve a helyiségeket borító rusztikus kő padló burkolattal.
A fényekről tulipánformájú falilámpák gondoskodnak, megteremtve a meghitt hangulatot.


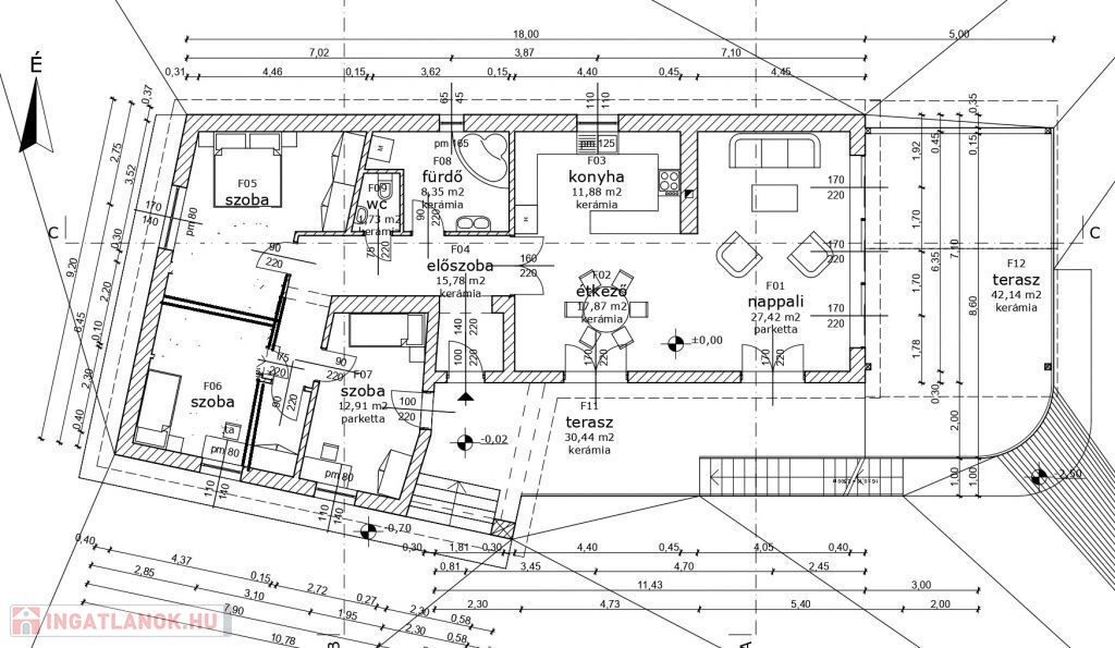
A konyha: A közösségi tér a tágas, 57 nm-es nappali-konyha, melyben egy tradicionális fehér konyhabútor konyhaszigettel szolgálja a közös főzések élményét.


MÉRETEK ÉS ELRENDEZÉS:

A 126 négyzetméteres lakótér kényelmes elrendezéssel bír:


3 hálószoba és 2 fürdőszoba biztosítja a privát szféra és a komfort luxusát.
Pince: A ház alatt két, összesen 70 négyzetméteres pince húzódik, amely ideális csónaktárolónak, konditeremnek, vagy borospincének.
Terasz: A külső élet tere a monumentális, 72 négyzetméteres, tégla burkolatú terasz, amely ideális helyszín a Duna-parti napfelkelték és családi összejövetelek élvezetéhez.


Helyiségek: nappali (21,4 nm), konyha (11,9 nm), étkező (17,9 nm), 3 szoba (13,5 és 12,9 és 11 nm), 2 fürdő (7,1 és 3,2 nm), kamra (4,7 nm), közlekedő (17,4 nm), gardrób (2,6 nm) és extra beépíthető tetőtér (42 nm).

LOKÁCIÓ ÉS ÉRTÉK:

A ház közvetlenül a Duna-parton fekszik, mely állandó feltöltődést és páratlan természeti környezetet nyújt. A környék garantáltan csendes, ideális választás azoknak, akik a város zajától távol, mégis könnyű elérhetőség mellett keresik otthonukat.

Ne hagyja ki ezt a ritka lehetőséget, ahol a minőség, az egyedi design és a természet közelsége találkozik!

Hívjon még ma, és tekintse meg személyesen, mielőtt más csap le erre az egyedülálló Duna-parti álomra!

Százhalombatta egy modern, élhető kisváros, Budapesttől Délre a Duna mentén kb. 30 km távolságra fekszik! Százhalombatta minden adottsággal rendelkezik, hogy egy család barát városnak hívjuk! Kiváló oktatási és nevelési intézmények (6 óvoda, 4 általános iskola, 2 középiskola), magas szintű egészségügyi ellátás, jó közbiztonság, változatos sportolási lehetőségek, játszóterek, kiemelkedő kulturális események jellemzik. A településen fedett uszoda, strand, sportközpontok, vízisporttelep, lovarda, múzeum, régészeti park, hangulatos éttermek találhatóak. A város fejlett iparának köszönhetően számos munkalehetőség kínálkozik helyben. Tömegközlekedéssel, vonattal és busszal is könnyedén megoldható a munkába járás a fővárosba. Gépkocsival a 6-os, 7-es úton, az M6-os autópályán Budapest félóra alatt elérhető!

-----------------------------------------------------------------------------------------------------------

Gacsó Ház Ingatlanközvetítő Kft.

INGATLAN/HITEL/BIZTOSÍTÁS



Az ingatlanoknak mérete és ára van, az otthon igazi értéke viszont felbecsülhetetlen! Mi ezért - az értékbecsléstől a birtokbaadásig - végigkísérünk az ingatlan adásvétel folyamatán, hogy anyagi, jogi és érzelmi biztonságban legyél!



SZÍVÜGYÜNK AZ OTTHONOD!



Irodáink:



1163 Budapest, Veres Péter út 39.

2440 Százhalombatta, Erkel Ferenc körút 1. (üzletsor)



Hívj bizalommal: Nádasi Norbert +36-20/2-380-380, nadasi.norbi@gacsohaz.hu


Dati di Casa

126 metri quadrati

716 metri quadrati

Medio/a

Casa unifamiliare

Mattone

Pompa di ricircolo (sistema di riscaldamento chiuso a pressione)

Gas

Doppio comfort

Non fornito!

Fronte strada

Non é stato fornito

Non é stato fornito