Testo tradotto
Testo originale
Meghitt családi ház, jól átgondolt kialakítással, tökéletes kerttel,
BELTÉRI MEDENCÉVEL, KÜLÖN LAKRÉSSZEL,NAGY CSALÁDOSOK részére .
Tatán a József Attila utcában kínáljuk eladásra ezt a mediterrán 307 nm-es családi házat,610nm-es parkosított, telekkel.
Az ingatlan elrendezése átgondolt, jól lakható, minden kényelmi és praktikumi feltételnek megfelel. Kialakításának köszönhetően, akár nagycsaládosoknak vagy szülőkkel összekötözőknek is ideális lehet, de az utcafronti 78 nm-es külön lakrész akár irodának, üzlethelyiségnek is tökéletes.(Jelenlegi tulajdonosai is irodának használták)
A lakótereket úgy alakították ki, hogy fontos szerepet kapott a tágasság, a közösségi tér szülők és - gyerkőcök külön birodalmának harmonikus összekapcsolása.
A földszinten található 46m2-es amerikai-konyhás nappali bőséges helyet kínál, ahol együtt lehet a család, ugyanakkor a tetőtérben kialakított szobákban (4 szoba+ fürdőszoba) mindenki számára megmarad az intim szféra. Így gyermeke mindegyike külön-külön kis birodalmat birtokolhat.
A földszinten egy tágas amerikai konyha egy, szinte teljesen a kerttel egybe olvadó télikert jellegű nappali, óriási üvegfelületekkel, két szoba (az egyik szoba egy mozi szoba ) fürdőszoba került kialakításra.
A konyha mindennel felszerelt, praktikus elrendezésű. A nappali kialakítása ízléses, meghit hangulatot biztosít a család közösen eltöltött estéihez,vagy éppen napközben a hatalmas üvegablakaiból csodálhatjuk a szépen karbantartott ,egzotikus ,kerti tavacskákkal, csobogókkal , erdőkert stílusban kialakított udvart, mely egy igazi kis édenkert, ahol az utolsó kis fűszálnak is meg van a helye.
Ha már a kertnél járunk:
Imádni fogja a kert végén található rusztikus fedett kerti kiülőt, ahol vendégül láthat akár egy nagyobb baráti társaságot is egy kis grillezésre, esetleg a kemencében egy pizza sütésre.(Felszereltsége:kemence,bográcsozó,grill,rendli,sparhelt…)
És ha még el tud képzelni további extrákat:
Akkor a másik kedvenc helysége lesz majd az 52 nm-es wellness részleg, ahol egy 3X8méteres áramoltatóval ellátott fűthető medencében vagy éppen a finn szaunában pihenheti ki a fárasztó hétköznapokat.
Szintén a kényelmünket szolgálja az elektromos kapuval ellátott autóbejáró, és a tárolás miatt sem kell aggódni, mivel a telken található több tároló helyiség is.
A ház védjegyeként emelném ki a kívül belül megjelenő egyedi díszkő borításokat. (A belső egyedi kézzel kirakott kőberakásokat a Keleti kézművesség ihlette)
Műszaki és alap adatok:
-A ház utcafronti része - a 20-as években -ban épült, kő falazatú, alappal rendelkezik. Jelenleg ez az épületrész irodaként funkcionál.
-1987-ben épült meg a hátsó épületrész földszinti és tetőtéri része. Ez a lakótér. A hátsó épületrész tégla falazatú.
-1996-ban teljes átépítésen és teljes körű korszerűsítésen esett át és azóta is folyamatosan újítva, karbantartva van.( Tetőtér beépítése. )
-wellness részleg kialakítása 2003
- fa szerkezetű nappali hozzáépítése 2005
-fűtés korszerűsítés (3 fűtési kör.3 kazán.iroda+ház+welnes )
-tetőtér ráépítés az irodarész felett. Zsindely borítás (vasbetonkoszorúval összefogva a hozzáépítést is) 2008
(a vasbeton födem alatt meghagyták az eredeti nagyon szép állapotú gerendákat)
- klimatizálás, szellőztető rendszer kialakítása. (Tetőtérben programozható hütő -fütő szellőztetőrendszer,földszinten Lg split klíma)
-Riasztórendszer.Külső -belső HD minőségű kamerarendszerrel
Alapadatok:
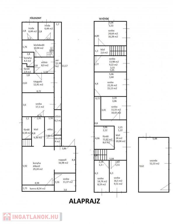
Hasznos alapterület: ( korrigált)307nm
különálló lakrész/iroda :52,25nm + iroda tetőtér része 25,5nm (összesen 77,75nm)
földszint: 136,83 nm
tetőtér: nettó 71,9nm (bruttó 101,35nm)
uszoda: 52,33nm (hasznos 26,16nm)
Telekterület: 673 m2
Az ingatlan per és tehermentes. Azonnal birtokba vehető.
Ha az elmondottak, és a magáért beszélő képek után felkeltettük érdeklődését,
Hívjon bizalommal, és nézze meg személyesen is!!
Az ingatlan kizárólag a Dot-Ing Ingatlan irodával tekinthető meg.
Kérje INGYENES hitelminősítésünket és ügyintézésünket 18 bank ajánlatából!
KAMATTÁMOGATOTT CSOK PLUSZ HITEL már használt ingatlanra is. Teljes körű ügyintézés, teljes jogi képviselettel.
Érdeklődni:
Szabó Szilvia
Tel.:06 70 367 76 36
307 metri quadrati
610 metri quadrati
Medio/a
Casa unifamiliare
Non é stato fornito
Pompa di ricircolo (sistema di riscaldamento chiuso a pressione)
Non é stato fornito
Non fornito!
Non fornito!
Non é stato fornito
Non é stato fornito
Non é stato fornito
Cerchi nella nostra banca dati una semplice casa, appartamento, ufficio, garage, lotto o qualsiasi altro immobile!
Il dominio Immobiliare.hu é membro del Real Estate Group.
Immobili in vendita in Ungheria - Immobiliare.hu © 2025 Tutti i diritti riservati