Immobile ad uso industriale vendesi, Veszprém

Pagina principale » Immobile ad uso industriale vendesi, Veszprém » Immobile ad uso industriale vendesi, Veszprém

89 900 000 Ft

€237 153
Dati dell'inserzionista

Nívó Ingatlanforgalmi Szakértői Iroda

Scrivi messaggio
Il messaggio deve contenere almento 10 caratteri.
Descrizione

Testo tradotto

Testo originale
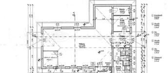
Nemesvámoson 2172 m2-es, bekerített, összközműves, kamionnal is jól megközelíthető telken, 2001-ben 38-as ytongból épült, egy szintes, 170 m2-es műhely, telephely eladó.

Az épület áll munkaterületből, irodából, raktárból, teakonyhából, zuhanyzóból, két külön WC-ből és kazánházból. A műhely belmagassága ~3,20 m, az aljzata festett beton. Nyílászárói műanyag nyílászárók. 2026. januárban a tető felújítása befejeződik. Fűtése gázkazán, radiátoros fűtés. Áramkapacitás: 3x16A.

Övezeti besorolása: Gksz-02

Elhelyezkedéséből, beépíthetőségéből adódóan több funkció kialakítására is alkalmas.

Ár: 89,9 millió Ft.

Az ingatlan megtekintése irodánkkal előre egyeztetett időpontban történik. Szívesen állunk rendelkezésre!

Keresünk és kínálunk eladó és bérbeadó ingatlanokat, albérleteket Veszprém, Balaton, Bakony, Káli-medence régióban.
Ügyeleti telefonszámunk: .
A Nívó Ingatlanforgalmi Szakértői Iroda teljes eladó és bérbeadó ingatlan és albérlet kínálatát megtekintheti a oldalunkon.

Irodai azonosító kód: N4796 Nívó ingatlan: N4796

Dati di Immobile ad uso industriale

Medio/a

Officina

Non é stato fornito

170 metri quadrati

Non é stato fornito