Lotto/terreno vendesi, Harta

Pagina principale » Lotto/terreno vendesi, Harta » Lotto/terreno vendesi, Harta

120 000 000 Ft

€307 385
Dati dell'inserzionista

Borosné Hajnalka

Scrivi messaggio
Il messaggio deve contenere almento 10 caratteri.
Descrizione

Testo tradotto

Testo originale
Eladó ipari csarnok a Duna kanyarulatában kiváló adottságokkal.
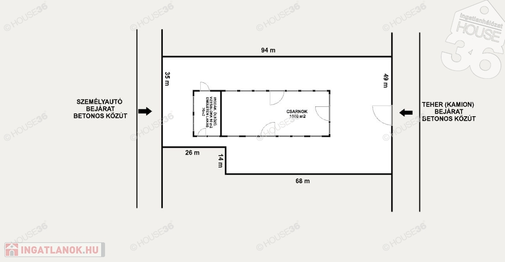
Megvételre kínálunk egy 1000 m2 -es ipari csarnokot amely 4388 m2 -es telken helyezkedik el.
Az ingatlan kiváló lehetőségeket biztosít ipari, gyártó, és logisztikai tevékenységekre, hiszen utánfutók, hajóalkatrészek gyártására használták.
Ez az ingatlan tökéletes választás vállalkozások számára ,akik egy jól megközelíthető, nagy területtel rendelkező, azonnal használható ipari csarnokot keresnek.

A csarnok főbb jellemzői:
- három ipari kapu a könnyű be és kirakodásért
- iroda, öltöző, tusoló és étkező tér a dolgozók kényelméért
- tetőtéri rész ( 76 m2) amely lakás vagy további iroda kialakítására alkalmas, dunaparti panorámával
- erős ipari infrastruktúra : 3 x 100 Amper áram, saját trafó
- masszív szerkezet, zsalukő betonnal kiöntve,5 cm szigetelés
- trapézlemez tető
- ventillátoros légbefúvós kályha

Ne hagyja ki ezt a remek lehetőséget!
Hívjon most, és tekintse meg személyesen!
Az iroda legfrissebb, aktuális kínálatát a HOUSE36 saját weboldalán találja!

Dati di Lotto/terreno

Terreno ad uso industriale

Non é stato fornito

Non é stato fornito

Zona interna

Non é stato fornito

4 387 metri quadrati

Non é stato fornito

Non é stato fornito

Mappa