Testo tradotto
                                                    
                            Testo originale
                            FOGARASI ÚTON, FREKVENTÁLT RÉSZEN, 24 H PORTA SZOLGÁLATTAL, 2 DB PARKOLÓVAL!
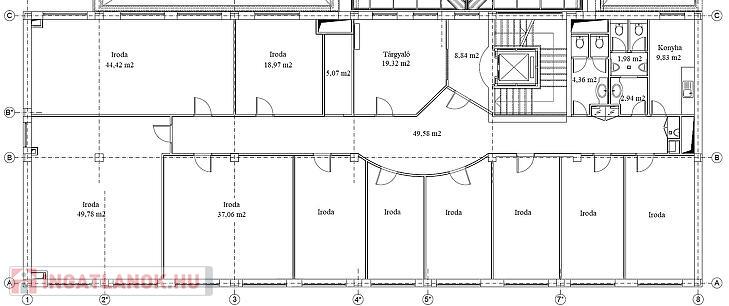
XIV. Kerület központi részén, BKV-val és személygépjárművel egyaránt könnyedén megközelíthető modern irodaház teljes 357 m2-es második emelete keresi hosszútávra új bérlőjét.
Az irodaház a sorompóval zárt parkolóból és utcafrontról is megközelíthető, kártyás beléptető rendszerrel működtetett.
Az iroda szintet üvegliften és lépcsőn keresztül érjük el , az épület saját recepcióval és kamerarendszerrel felszerelt.
Jelenleg a szinten 11 külön,- a folyosóról nyíló iroda,- 1 db 12 fős befogadóképességű tárgyaló,- férfi és női mosdó és teakonyha található.
A felszíni parkolóban 2 db autóbeálló tartozik hozzájuk, igény esetén további parkolóhelyek bérelhetőek.
A házon belül a tágas konferenciaterem térítésmentesen használható rendezvények, megbeszélések, oktatások lebonyolítására. 
Megközelítés: 80-a trolival és 130-as busszal. M2 jelzésű metróval a Stadionok megállótól 7 perc sétára található.
A bérleti díj: 9,5 euró/ m2
Üzemeltetési díj: 7 euró/ m2
További információkért az alább megadott telefonszámon keressen bizalommal!
Bérlőink számára a közvetítés díjtalan.
                        
Non é stato fornito
Ufficio
357 metri quadrati
Non é stato fornito
Non é stato fornito
 
                Cerchi nella nostra banca dati una semplice casa, appartamento, ufficio, garage, lotto o qualsiasi altro immobile!
Il dominio Immobiliare.hu é membro del Real Estate Group.
Immobili in vendita in Ungheria - Immobiliare.hu © 2025 Tutti i diritti riservati