Ufficio vendesi, Debrecen

Pagina principale » Ufficio vendesi, Debrecen » Ufficio vendesi, Debrecen

127 000 000 Ft

€329 750
Dati dell'inserzionista

Lukovics Zsolt

Scrivi messaggio
Il messaggio deve contenere almento 10 caratteri.
Descrizione

Testo tradotto

Testo originale
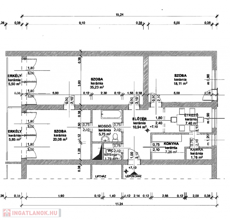
Debrecen Belvárosában a Piac utcán eladó egy 116 nm alapterületű második emeleten található, tégla építésű lakás.

Az ingatlan főbb jellemzői.:

- műanyag nyílás zárók
- rendezett, tiszta és liftes lépcsőház
- tágas világos terek
- 12 nm terasz ami a Piac utcára tekint
- klimatizált
- rugalmas birtokba adás
- jelenleg oktatás folyik az ingatlanban de bármikor vissza minősíthető lakáscélra

Bővebb információkért kapcsolatban kérem keressen bizalommal.

Dati di Ufficio

Non é stato fornito

Ufficio

116 metri quadrati

In casa

Non é stato fornito

Mappa