Ufficio vendesi, Seghedino

Pagina principale » Ufficio vendesi, Seghedino » Ufficio vendesi, Seghedino

100 000 000 Ft

€263 706
Dati dell'inserzionista

Szil Gabriella

Scrivi messaggio
Il messaggio deve contenere almento 10 caratteri.
Descrizione

Testo tradotto

Testo originale
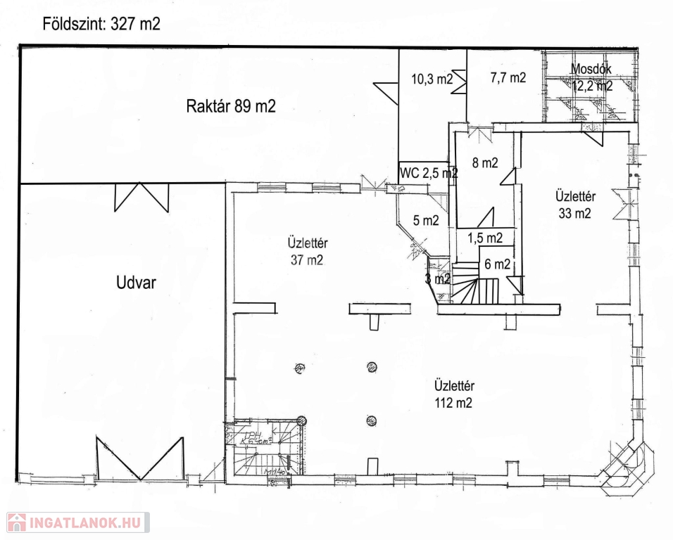
SZŐREGEN VÁLLALKOZÁSRA ALKALMAS 500 M2-ES INGATLAN ELADÓ!

Szőreg központjához közel eladóvá vált egy vállakozásra alkalmas, kétszintes ingatlan. A földszinti részen egy kisebb vendéglátó egységet találunk hozzá kapcsolódó 70 fő befogadására alkalmas, tágas étterem résszel, hideg-meleg konyhával és több raktárhelyiséggel.
Az emeleten pedig egy 70 m2-es, 2 szobás lakás került kialakításra, ami bármikor kiadható, de irodaként is funkcionálhat.
Az ingatlan 2006 évben felújításra került.
A fűtésről 2 db kombi kazán gondoskodik, a hűtésről pedig klímák.
A 3 fázis bekötése megtörtént.

Az ingatlan számos lehetőséget tartogat új tulajdonosa számára legyen szó vendéglátásról, edzőteremről, bemutatóteremről vagy apartmanházról.

NÉZZE MEG AJÁNLATUNKAT SZEMÉLYESEN IS!

Dati di Ufficio

Non é stato fornito

Locale commerciale

500 metri quadrati

Non é stato fornito

Non é stato fornito

Mappa