Testo tradotto
                                                    
                            Testo originale
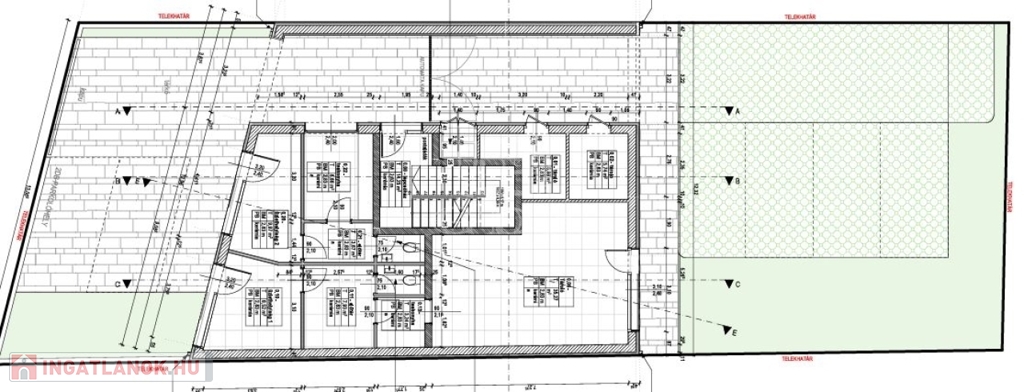
                            Eladó Veresegyház központi részén utcai bejáratos üzlethelyiség, 3 db. 
- 2025-ös építés, még idén birtokba vehető.
- az építtető régóta a piacon lévő cég, megbízható, korrekt, magas minőségben épít.
- padlófűtés, mennyezet hűtés.
- a belső terek kialakítására most még van lehetőség.
- az üzletekhez 1-1 parkoló tartozik.
- két üzlet akár egybe is nyitható így akár 66 nm is elérhető.
- a vételárra 27 % Áfa még hozzáadódik.
(A képek némelyike szerkesztett !!!)
Bank semleges hitelcentrumunk számos bank kínálatát nyújtja Önnek díjmentesen a vásárláshoz.
Bővebb felvilágosításért vagy megtekintésért kérem hívjon,köszönöm!                        
Non é stato fornito
Locale commerciale
24 metri quadrati
Non é stato fornito
Non é stato fornito
 
                Cerchi nella nostra banca dati una semplice casa, appartamento, ufficio, garage, lotto o qualsiasi altro immobile!
Il dominio Immobiliare.hu é membro del Real Estate Group.
Immobili in vendita in Ungheria - Immobiliare.hu © 2025 Tutti i diritti riservati